두 마당 집 (2가구 다가구주택)
진행상태
사용승인 완료
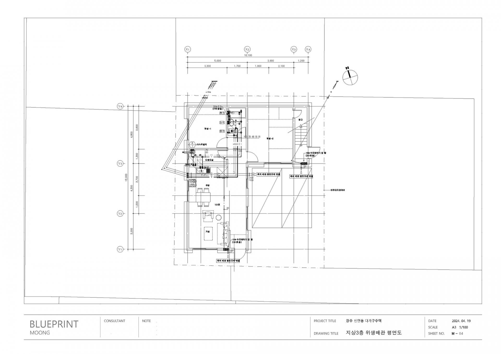
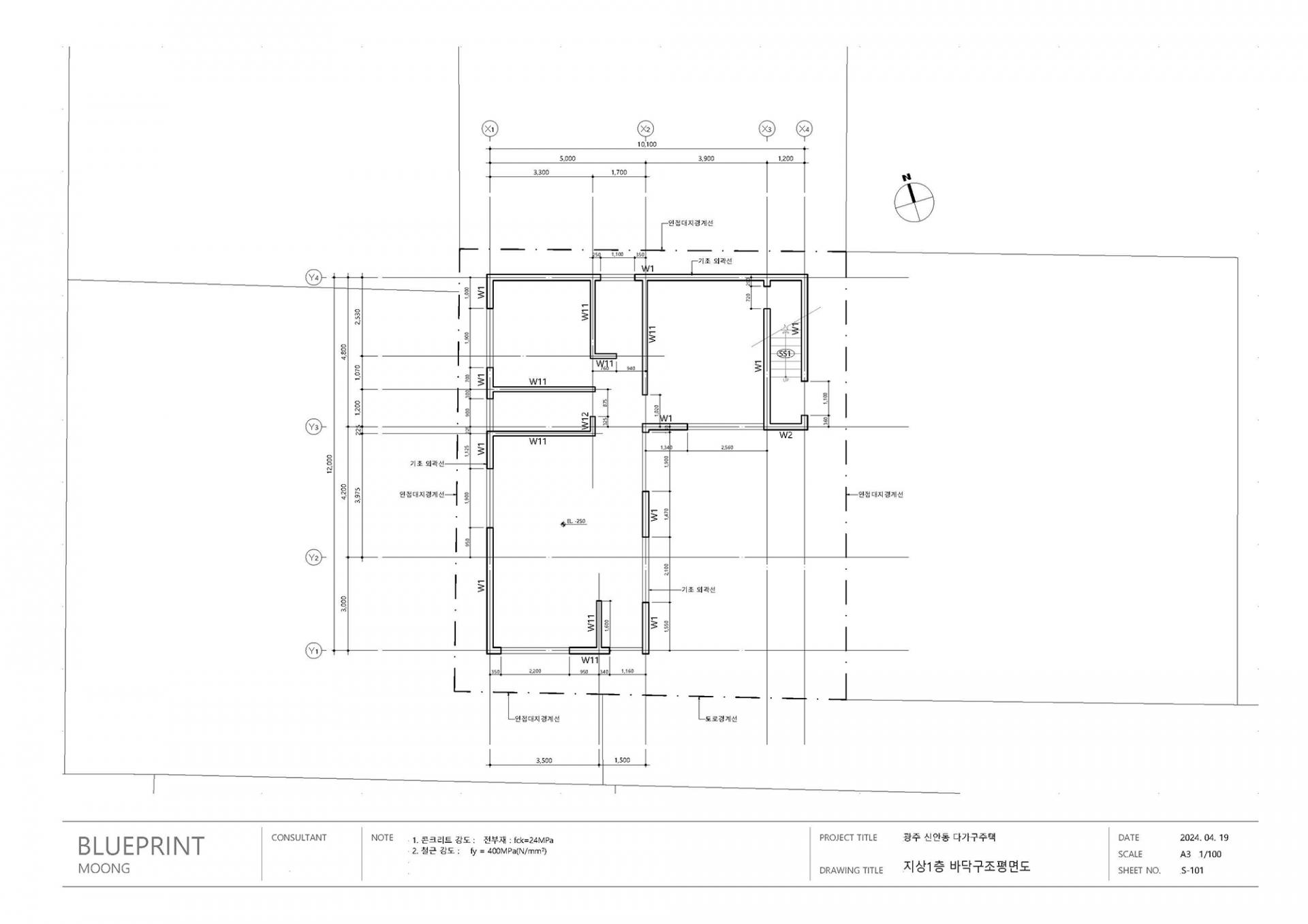
포함 도서
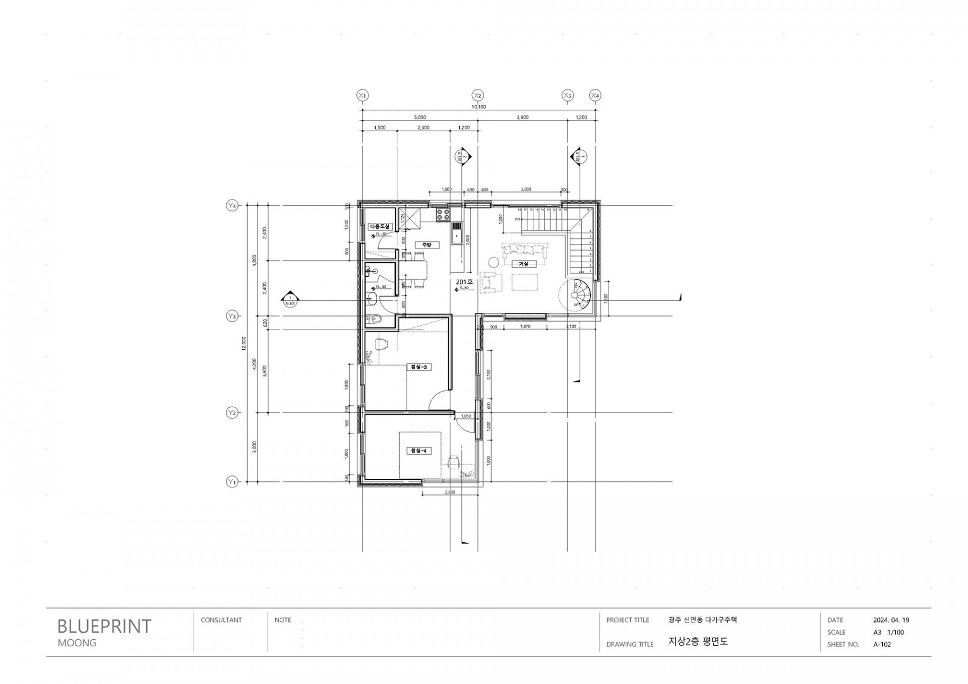
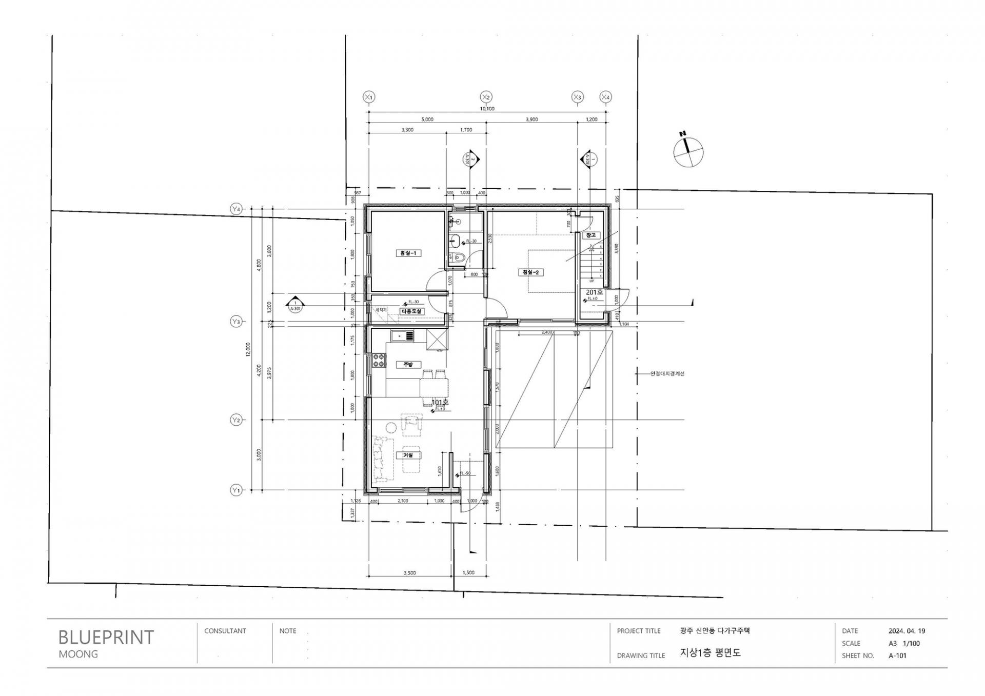
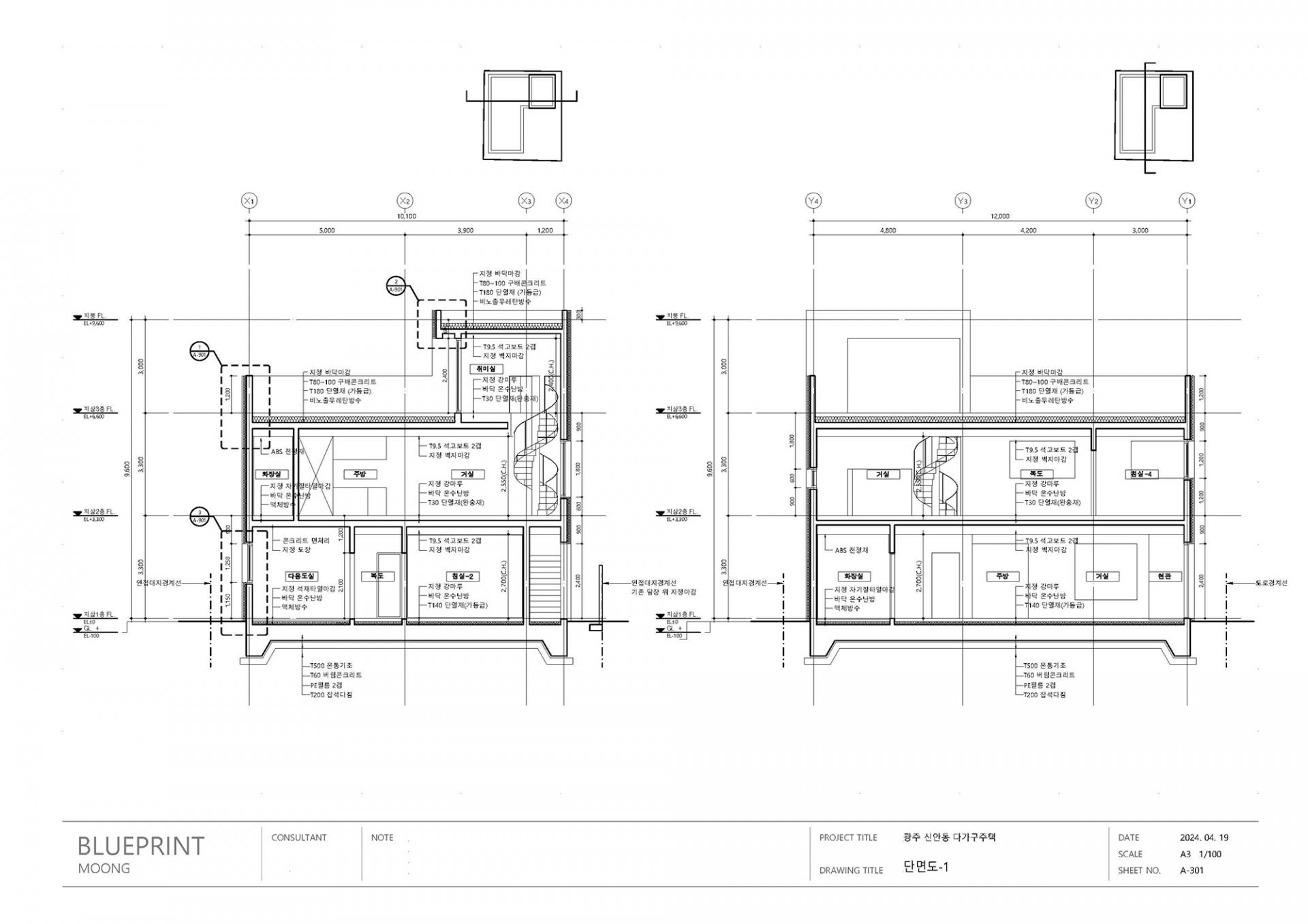
건축허가 도면, 건축 시공 도면, 건축, 구조, 전기 설비, 기계 설비, 건축물대장용 도면
*건축허가, 시공을 위해 준비된 도서 일체 제공 가능
규모
대지 : 178.8m2(54평)
1층 세대 : 방2, 화장실1, 다용도실
2층 세대 (3층과 한 세대) : 방3, 화장실1, 다용도실
소개
구도심의 오래된 단독주택지에 적합
2020년도 기준 공사비 2.8억
배송방법 이메일 파일 전송
배송비 없음
20년 넘은 양옥집이 모여 있는 마을은 오래된 도심의 대표적인 풍경이다. 당시 대량 공급 방식을 통해 자가소유의 소망을 이루어준 집들이다.
작지만 많은 생활을 담았던 마당, 장독대, 철재 대문, 수돗가, 대문 옆 변소, 삭월세방 부엌 위 다락은 도시인의 추억과 시간을 함께 쌓았다.
집에 대한 애착이 아무리 크더라도 단열, 방수, 설비의 노후화로 인한 정신적, 경제적 피로감까지 상쇄시킬 수는 없다.
제일 작은 창이 있는 방은 장판 아래, 벽지 안쪽에 습기가 차서 창고로도 사용 못하고 비워둔지 오래다.
거실 벽체의 베니어 합판 속에는 개미들의 아파트가 있는지 끝도 없이 개미가 드나든다.

이제 새 집을 지을 시간!
1층은 점순씨가 살 집, 2층은 점순씨의 노후를 위해 세놓기 위한 집이 있는 다가구주택이다. (물론 1층을 세놓아도 좋다.)
이 집에는 1층, 2층 둘 다 마당이 있다. 단독주택의 느낌을 살리고자 두 집에 모두 마당을 배치하였다.
공사비가 너무 크지 않아야 했기에 가능한 단순하게 설계되어졌다. 2층이 3층과 복층으로 사용되도록 한 것과 좋은 창호 시공은 공사비 절약 항목에서 살아남았다.









지금까지 3년차 새 집에서 살고 있는 주인 점순씨는 인생에서 가장 행복한 시간을 보내고 있다고 말한다.
손자들이 클때까지 돌보던 서울생활을 접고 이 집에 다시 정착하게 되었으니, 표정을 보면 말로만 그러는 건 아닌 것 같다.
2층에는 신혼부부가 살다가 아이를 낳고 얼마 후 이사하였고, 첫눈에 집에 반했다는 새 세입자가 거주하고 있다.
-건축 도면













배송안내
해당 제품의 데이터 파일은 기재해 주신 이메일로 전달됩니다.
교환 및 반품 안내
서비스 제품의 특성상 고객의 변심에 의한 구매 해지는 불가하며, 제품이 제품 설명과 다를 경우 환불이 가능합니다. 환불 요청 계좌로 입금처리합니다.
20년 넘은 양옥집이 모여 있는 마을은 오래된 도심의 대표적인 풍경이다. 당시 대량 공급 방식을 통해 자가소유의 소망을 이루어준 집들이다.
작지만 많은 생활을 담았던 마당, 장독대, 철재 대문, 수돗가, 대문 옆 변소, 삭월세방 부엌 위 다락은 도시인의 추억과 시간을 함께 쌓았다.
집에 대한 애착이 아무리 크더라도 단열, 방수, 설비의 노후화로 인한 정신적, 경제적 피로감까지 상쇄시킬 수는 없다.
제일 작은 창이 있는 방은 장판 아래, 벽지 안쪽에 습기가 차서 창고로도 사용 못하고 비워둔지 오래다.
거실 벽체의 베니어 합판 속에는 개미들의 아파트가 있는지 끝도 없이 개미가 드나든다.

이제 새 집을 지을 시간!
1층은 점순씨가 살 집, 2층은 점순씨의 노후를 위해 세놓기 위한 집이 있는 다가구주택이다. (물론 1층을 세놓아도 좋다.)
이 집에는 1층, 2층 둘 다 마당이 있다. 단독주택의 느낌을 살리고자 두 집에 모두 마당을 배치하였다.
공사비가 너무 크지 않아야 했기에 가능한 단순하게 설계되어졌다. 2층이 3층과 복층으로 사용되도록 한 것과 좋은 창호 시공은 공사비 절약 항목에서 살아남았다.









지금까지 3년차 새 집에서 살고 있는 주인 점순씨는 인생에서 가장 행복한 시간을 보내고 있다고 말한다.
손자들이 클때까지 돌보던 서울생활을 접고 이 집에 다시 정착하게 되었으니, 표정을 보면 말로만 그러는 건 아닌 것 같다.
2층에는 신혼부부가 살다가 아이를 낳고 얼마 후 이사하였고, 첫눈에 집에 반했다는 새 세입자가 거주하고 있다.
-건축 도면













배송안내
해당 제품의 데이터 파일은 기재해 주신 이메일로 전달됩니다.
교환 및 반품 안내
서비스 제품의 특성상 고객의 변심에 의한 구매 해지는 불가하며, 제품이 제품 설명과 다를 경우 환불이 가능합니다. 환불 요청 계좌로 입금처리합니다.