게으른 토마토
진행상태
건축신고 완료
포함 도서
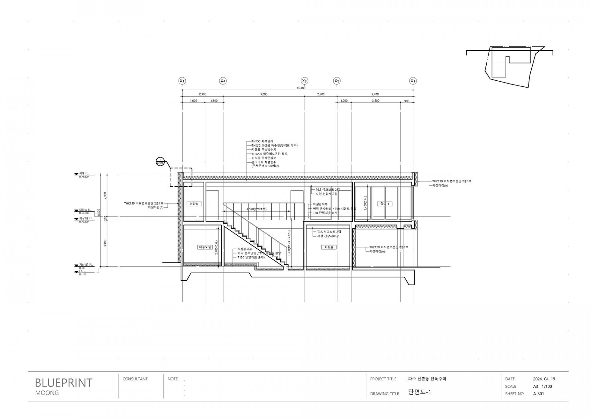
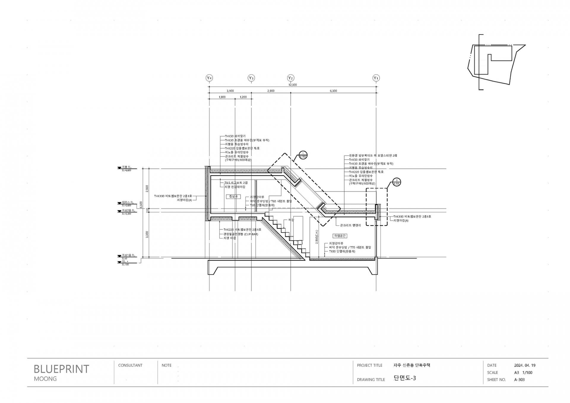
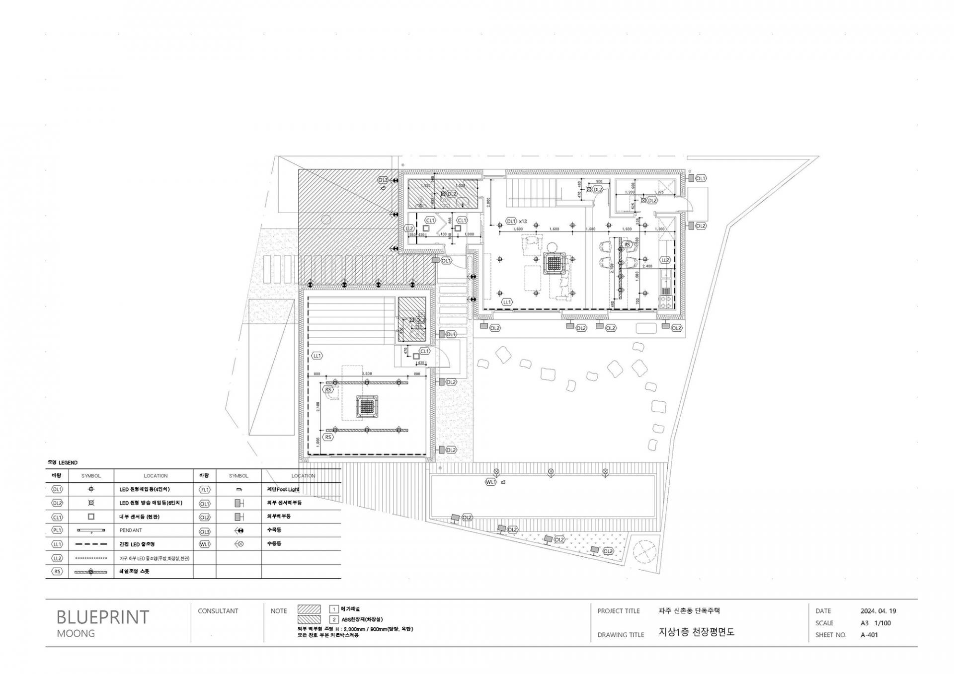
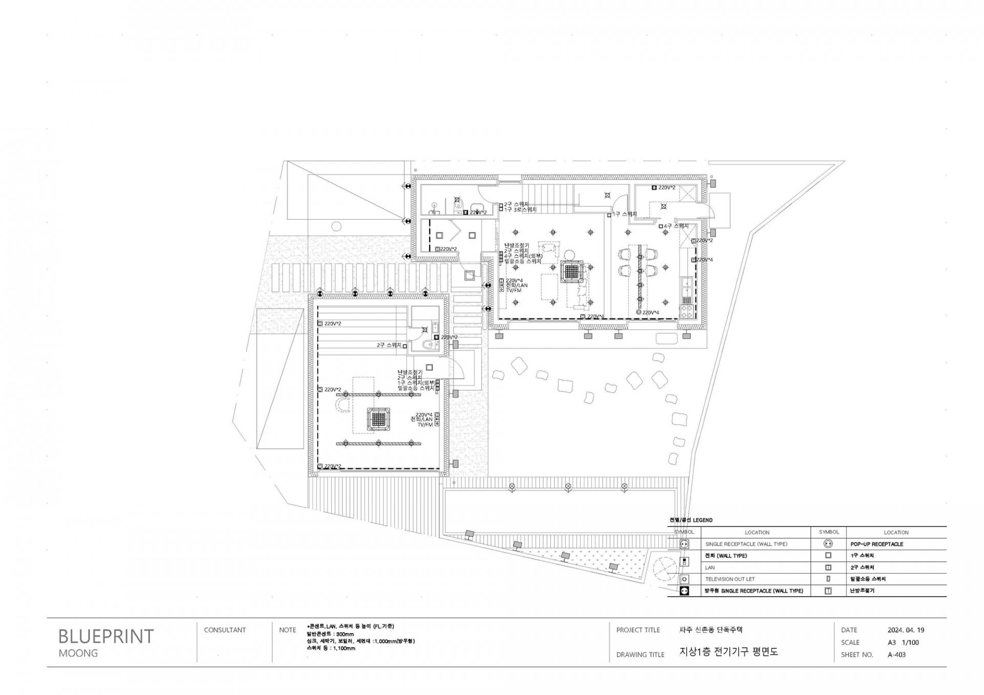
건축신고 도면, 건축 시공 도면, 건축, 구조, 전기 설비, 기계 설비
*건축허가, 시공을 위해 준비된 도서 일체 제공 가능
규모
대지 : 330.0m2(100평)
연면적 : 189.31m2 (57.31평)
방3, 작업실, 화장실4, 수영장(사계절용은 별도 설비필요)
소개
작업실을 갖춘 단독주택
방과 작업실 사이 폴딩도어 설치로 가변형 공간 구성 가능
2021년도 기준 공사비 3.7억(VAT. 별도)
배송방법 이메일 파일 전송
배송비 없음
게으른 토마토 어때?

코로나가 기승이어서 처음으로 재택근무가 일상이 되는 시기였다. 파주 한적한 곳에 직원 복지를 위한 집을 짓겠다는 건축주의 집을 설계하였고, 그 집이 다 지어질 무렵 바로 건너편 부지가 눈에 들어왔다.
언젠가부터 작업실을 겸한 주택을 갖고 싶었던 터라 바로 실천하기로 했다.
땅을 구매하고 설계를 진행하다 보니 이런 종류의 주택사업을 해보자는 방향으로 생각을 굳히게 되었다.
그렇다면 브랜드는 무엇으로 할까?

게으른 토마토!
과일인듯 채소인듯한 토마토가 이 집의 개념을 상징할 수 있을 거라 생각했다.
단독주택은 사는 재미와 별개로 관리하고 유지하는 일이 너무 많아서 곧 지친다는 말을 많이 들었기에 살면서 유지 관리의 스트레스를 덜 받고 사는 방법이 뭘까 세세하게 고민했다.
게을러도 즐길 수 있는 단독주택.
작업과 거주가 구분되면서도 유기적으로 이어지는 공간.

그리고 수영장이 있어야한다.
온수풀로 구성하고, 청소는 전용 로봇청소기를 사용하므로 사계절 동안 일상적으로 수영을 할 수 있다.
수영 매니아에게는 좋은 선택지지만 아니라면 수영장 대신 마당을 갖추면 될 일이다.

건축신고를 하고 공사견적까지 받았지만 불행히도 프로젝트를 더 이상 진행하지 못했다.
주변에 인접한 주택이 몇 채 있지만 그외에는 창고나 물류시설들이 근처에 속속 들어서고 있어서 주택 입지로는 적당하지 않게 변해갔다.
그곳에 주택을 지을 수는 없었다.
다른 장소에서 이 설계안이 구현되는 모습을 기대한다.
- 건축 도면













배송안내
해당 제품의 데이터 파일은 기재해 주신 이메일로 전달됩니다.
교환 및 반품 안내
서비스 제품의 특성상 고객의 변심에 의한 구매 해지는 불가하며, 제품이 제품 설명과 다를 경우 환불이 가능합니다. 환불 요청 계좌로 입금처리합니다.
게으른 토마토 어때?

코로나가 기승이어서 처음으로 재택근무가 일상이 되는 시기였다. 파주 한적한 곳에 직원 복지를 위한 집을 짓겠다는 건축주의 집을 설계하였고, 그 집이 다 지어질 무렵 바로 건너편 부지가 눈에 들어왔다.
언젠가부터 작업실을 겸한 주택을 갖고 싶었던 터라 바로 실천하기로 했다.
땅을 구매하고 설계를 진행하다 보니 이런 종류의 주택사업을 해보자는 방향으로 생각을 굳히게 되었다.
그렇다면 브랜드는 무엇으로 할까?

게으른 토마토!
과일인듯 채소인듯한 토마토가 이 집의 개념을 상징할 수 있을 거라 생각했다.
단독주택은 사는 재미와 별개로 관리하고 유지하는 일이 너무 많아서 곧 지친다는 말을 많이 들었기에 살면서 유지 관리의 스트레스를 덜 받고 사는 방법이 뭘까 세세하게 고민했다.
게을러도 즐길 수 있는 단독주택.
작업과 거주가 구분되면서도 유기적으로 이어지는 공간.

그리고 수영장이 있어야한다.
온수풀로 구성하고, 청소는 전용 로봇청소기를 사용하므로 사계절 동안 일상적으로 수영을 할 수 있다.
수영 매니아에게는 좋은 선택지지만 아니라면 수영장 대신 마당을 갖추면 될 일이다.

건축신고를 하고 공사견적까지 받았지만 불행히도 프로젝트를 더 이상 진행하지 못했다.
주변에 인접한 주택이 몇 채 있지만 그외에는 창고나 물류시설들이 근처에 속속 들어서고 있어서 주택 입지로는 적당하지 않게 변해갔다.
그곳에 주택을 지을 수는 없었다.
다른 장소에서 이 설계안이 구현되는 모습을 기대한다.
- 건축 도면













배송안내
해당 제품의 데이터 파일은 기재해 주신 이메일로 전달됩니다.
교환 및 반품 안내
서비스 제품의 특성상 고객의 변심에 의한 구매 해지는 불가하며, 제품이 제품 설명과 다를 경우 환불이 가능합니다. 환불 요청 계좌로 입금처리합니다.