햇살을 담는 집 : Suncatcher
진행상태
사용승인 완료
포함 도서
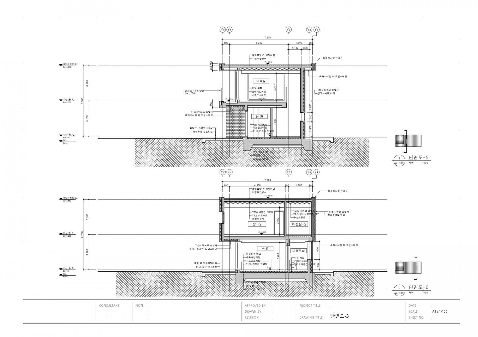
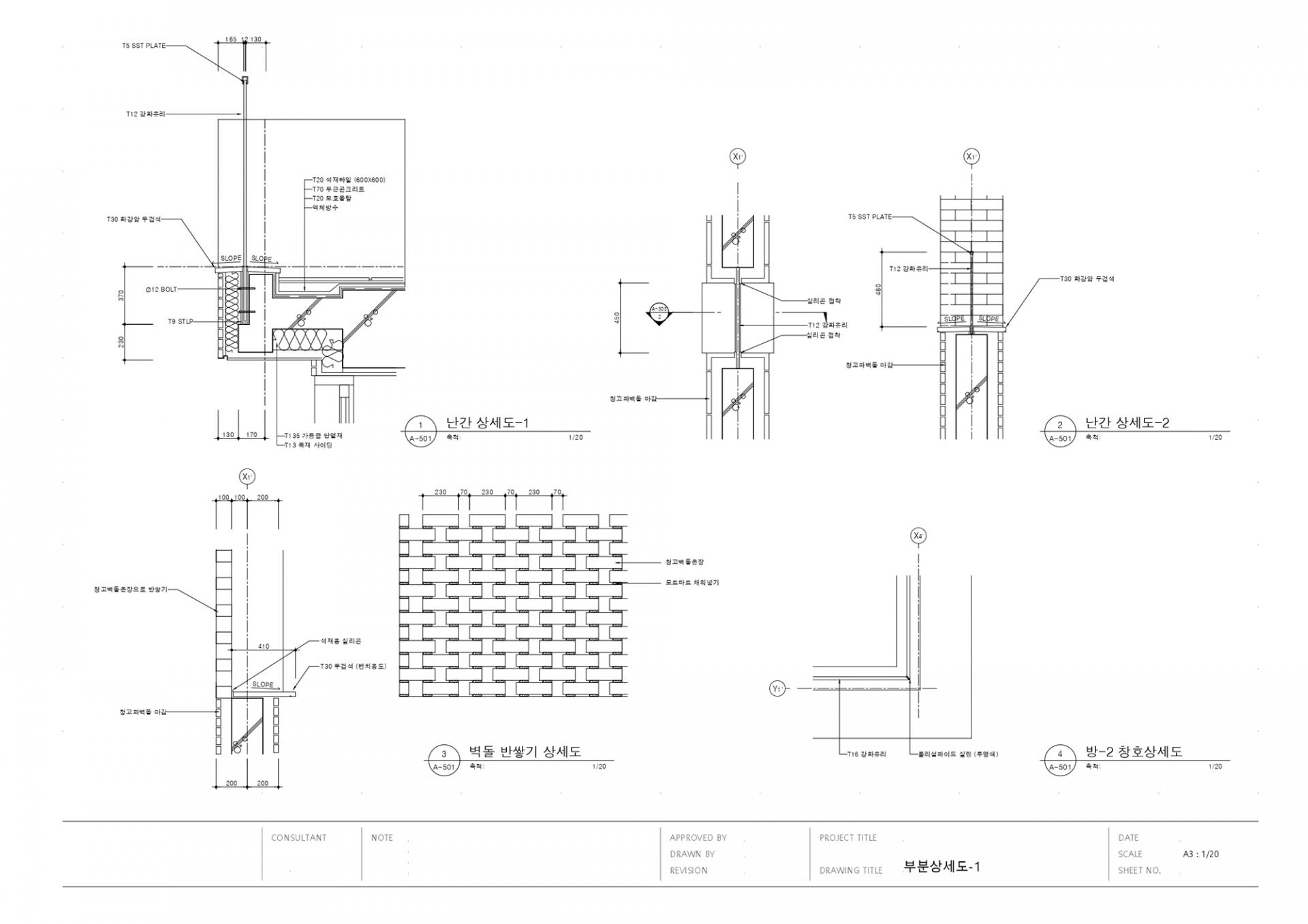
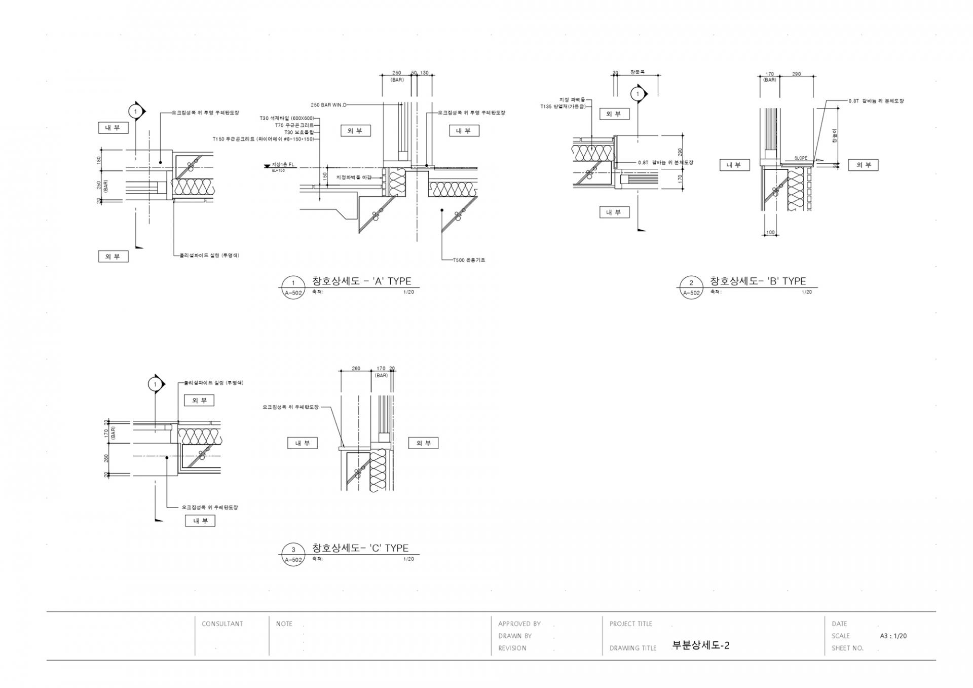
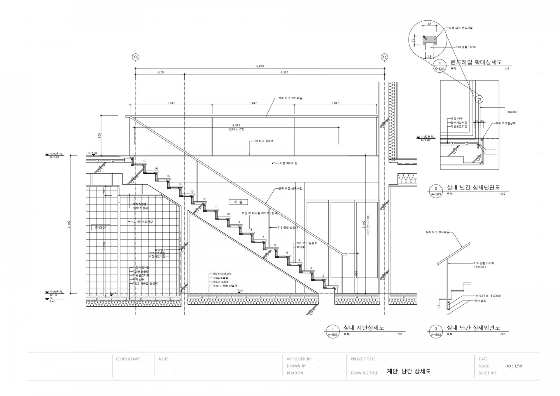
건축신고도면, 건축시공도면, 건축, 구조, 전기설비, 기계설비
* 건축신고, 시공을 위해 준비된 도서 일체 제공 가능
규모
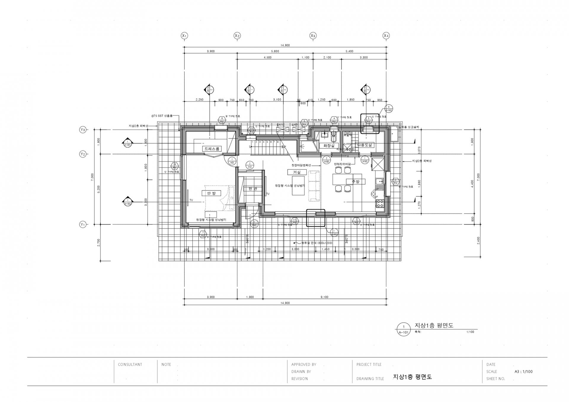
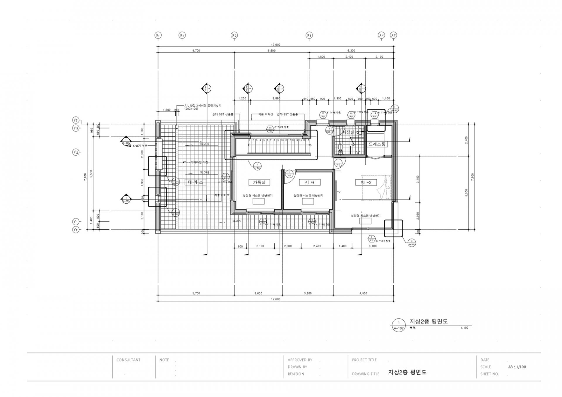
지상2층
연면적 : 182.30 m 2 (55.15평)
방 3 (1층 1개, 2층 2개), 화장실 2, 다용도실(보조주방)
소개
일자계단으로 연결된 2층
2층 테라스는 2층 거실의 마당 역할을 하며 다양한 활동 가능
테라스의 가벽을 활용하여 다양한 추가 구조물 설치 가능
2021년 준공
배송방법 이메일 파일 전송
배송비 없음
햇살을 담는 집 : Suncatcher

대지는 산에 둘러싸인 해가 잘 드는 곳이다.
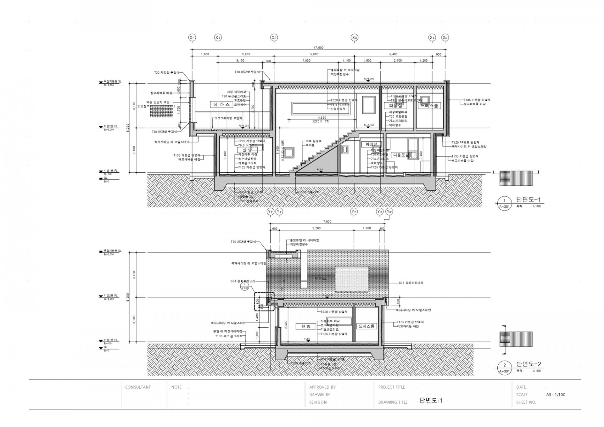
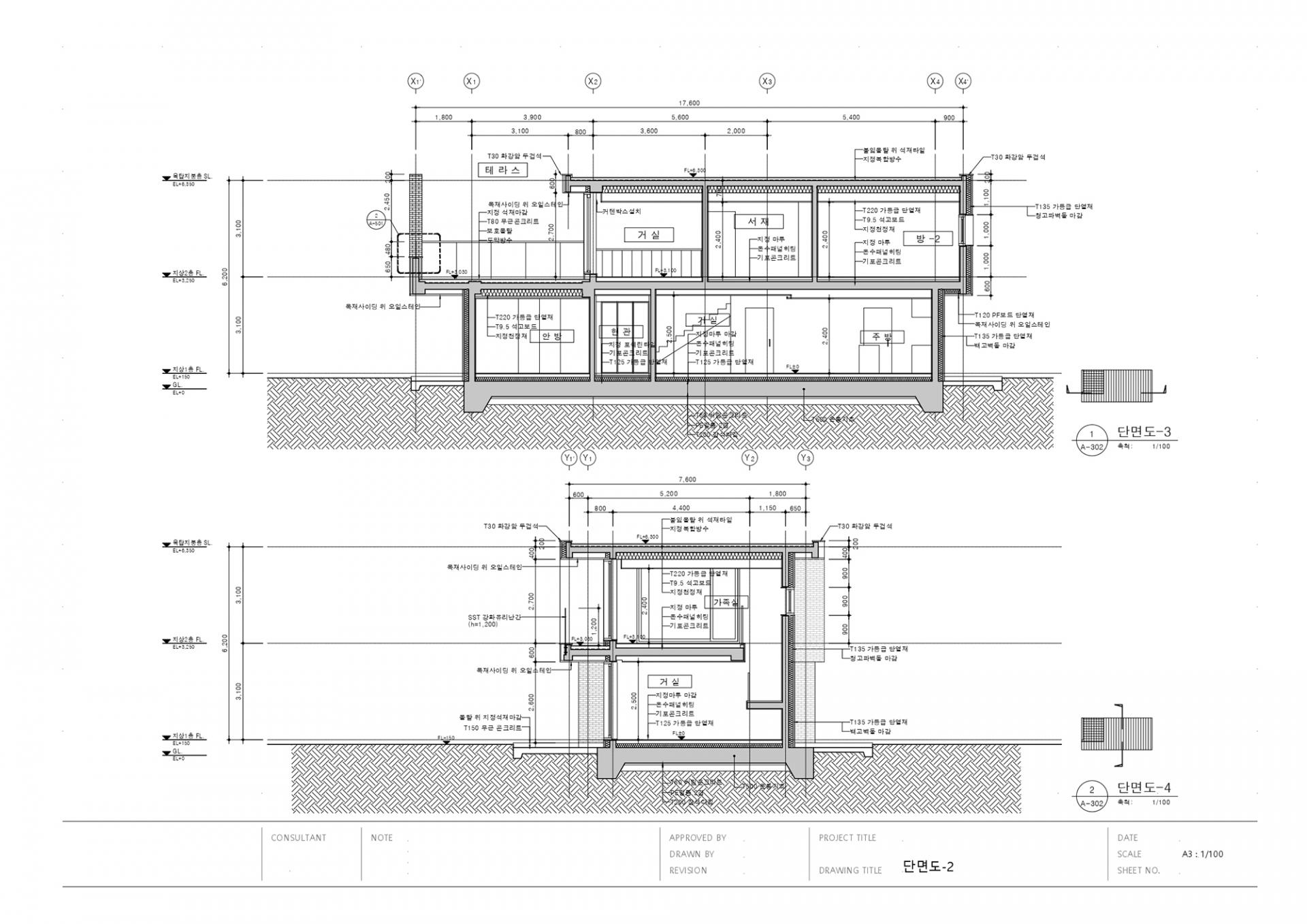
넓은 마당 한 켠을 차지하게 될 집은 2층 테라스와 본체를 잇는 커다란 프레임구조가 특징이다.
이는 햇살을 끌어 들이면서도 그늘을 만드는 역할을 한다.
햇볕을 붙잡는 역할을 기대하는 집이름이다.
Suncatcher


드림캐처에 착안해서 햇살을 붙잡는 프레임이란 뜻으로 작명하려 했는데,
이미 선캐처는 유리 세공품을 일컫는 명칭이었다. 잘됐다. 세상에 없는 말을 짓는 건 부담스러운 일이다.
건축주는 신축 전까지 대지에 조립식 가건물을 지어두고 잠깐씩 전원생활을 하고 있었다.
회사 사옥을 겸하겠다는 생각도 하지만 결국 주거용도로 방향을 잡고 여러차례 설계안을 검토하였다.
가능한 넓게 펼쳐진 평면 안을 검토하기도 했지만 대지를 많이 차지하지 않는 단순한 안을 선택했다.
마당이 넓지만 2층의 테라스 공간은 1층에서 보는 마당과 다른 느낌을 준다.
이후 집주인은 테라스 부분에 가변형 전동 지붕을 설치하여 때론 실내거실로, 때론 실외테라스로 사용했다.



건축물을 사용하다보면 자연스레 발견하게 되는 '튜닝'이라고 할 수 있겠다.
주방 거실 다이닝 공간을 하나로 묶어서 더 넓게 보이도록 계획했다.
이는 관리하는 데도, 생활하는 데도 편리하다.
1층에도 침실을 1개 배치하여 2층을 오르내리는 수고를 덜 수 있다.
외장재로 고벽돌를 사용했으나 크기가 균일하지 못하여 평활도가 높지 않게 시공된 것은 아쉬운 점이다.
꼭 벽돌이 아니더라도 평활도가 높은 재료를 선정한다면 위 아래 두 개의 매스로 구분한 조형 원리를 더 강조 할 수 있었을 것이다.
주택의 외장 재료로 벽돌도 좋지만 판넬 종류의 재료도 시도해 볼만하다.


2층 볼륨을 돌출시켜 비나 햇볕을 피하게 하려는 처마공간을 그 크기에 정확히 맞는 시골살이 짐들이 하나 둘 차지하고 있다.
그 중에 키우는 개 우리도 포함된다.
개를 키운다는 사실을 알았으면 좀더 우아한 개집을 디자인했을텐데… 집이란 이런식으로 자신의 쓸모를 만들어간다.
직사각형의 단순한 형태로 계획되어 건축면적만 적합하면 다양한 모양의 대지에 적용될 수 있다.
-건축 도면












배송안내
해당 제품의 데이터 파일은 기재해 주신 이메일로 전달됩니다.
교환 및 반품 안내
서비스 제품의 특성상 고객의 변심에 의한 구매 해지는 불가하며, 제품이 제품 설명과 다를 경우 환불이 가능합니다. 환불 요청 계좌로 입금처리합니다.
햇살을 담는 집 : Suncatcher

대지는 산에 둘러싸인 해가 잘 드는 곳이다.
넓은 마당 한 켠을 차지하게 될 집은 2층 테라스와 본체를 잇는 커다란 프레임구조가 특징이다.
이는 햇살을 끌어 들이면서도 그늘을 만드는 역할을 한다.
햇볕을 붙잡는 역할을 기대하는 집이름이다.
Suncatcher


드림캐처에 착안해서 햇살을 붙잡는 프레임이란 뜻으로 작명하려 했는데,
이미 선캐처는 유리 세공품을 일컫는 명칭이었다. 잘됐다. 세상에 없는 말을 짓는 건 부담스러운 일이다.
건축주는 신축 전까지 대지에 조립식 가건물을 지어두고 잠깐씩 전원생활을 하고 있었다.
회사 사옥을 겸하겠다는 생각도 하지만 결국 주거용도로 방향을 잡고 여러차례 설계안을 검토하였다.
가능한 넓게 펼쳐진 평면 안을 검토하기도 했지만 대지를 많이 차지하지 않는 단순한 안을 선택했다.
마당이 넓지만 2층의 테라스 공간은 1층에서 보는 마당과 다른 느낌을 준다.
이후 집주인은 테라스 부분에 가변형 전동 지붕을 설치하여 때론 실내거실로, 때론 실외테라스로 사용했다.



건축물을 사용하다보면 자연스레 발견하게 되는 '튜닝'이라고 할 수 있겠다.
주방 거실 다이닝 공간을 하나로 묶어서 더 넓게 보이도록 계획했다.
이는 관리하는 데도, 생활하는 데도 편리하다.
1층에도 침실을 1개 배치하여 2층을 오르내리는 수고를 덜 수 있다.
외장재로 고벽돌를 사용했으나 크기가 균일하지 못하여 평활도가 높지 않게 시공된 것은 아쉬운 점이다.
꼭 벽돌이 아니더라도 평활도가 높은 재료를 선정한다면 위 아래 두 개의 매스로 구분한 조형 원리를 더 강조 할 수 있었을 것이다.
주택의 외장 재료로 벽돌도 좋지만 판넬 종류의 재료도 시도해 볼만하다.


2층 볼륨을 돌출시켜 비나 햇볕을 피하게 하려는 처마공간을 그 크기에 정확히 맞는 시골살이 짐들이 하나 둘 차지하고 있다.
그 중에 키우는 개 우리도 포함된다.
개를 키운다는 사실을 알았으면 좀더 우아한 개집을 디자인했을텐데… 집이란 이런식으로 자신의 쓸모를 만들어간다.
직사각형의 단순한 형태로 계획되어 건축면적만 적합하면 다양한 모양의 대지에 적용될 수 있다.
-건축 도면












배송안내
해당 제품의 데이터 파일은 기재해 주신 이메일로 전달됩니다.
교환 및 반품 안내
서비스 제품의 특성상 고객의 변심에 의한 구매 해지는 불가하며, 제품이 제품 설명과 다를 경우 환불이 가능합니다. 환불 요청 계좌로 입금처리합니다.